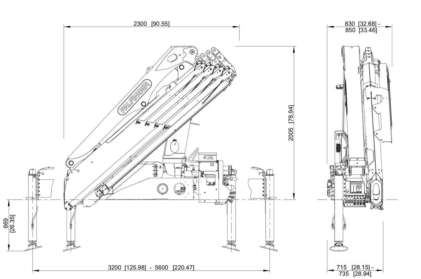
PK 8.501 SLD 3 - Palfinger

PK 8.501 SLD 3

INFO

051.976448 - INT. 4
347.5009090

DESIGN LEGGERO INTELLIGENTE OFFRE UN CONCETTO DI MONTAGGIO OTTIMIZZATO

  • Maggiore potenza nel gancio grazie al Single Link
  • Massima affidabilità grazie al PALTRONIC
  • Tempi di ciclo di carico più brevi grazie all’estensione ad alta velocità
  • Massimo utilizzo del campo di lavoro grazie all’HPSC

Info tecniche

Scrivi per info